Blog

'End of an era' - Shop closing after owner's death

The Music Room in Ulverston will be closing on May 22 after owner Paul O'Connor died on New Year's Eve from cancer.

The shop opened in 1995 on Queen Street and originally started by only selling CDs. To make the business more profitable he started exploring other areas within music sales so he began selling music books and instrument accessories.

In the very early days, Mr O'Connor also gave guitar lessons.

The inside of the music room. (Image: Submitted)

"He had a very good network to get s

'Not our parents' fault'-Daughter sets up group for Horizon scandal victims' children

Katie Downey set up Lost Chances for Subpostmaster Children to share their feelings and stories - but also with the mission to speak to Fujitsu to seek compensation for their lost chances and opportunities.

The 25-year-old has requested a meeting with Paul Patterson, the UK's Fujitsu director, to seek family funds and educational compensation, such as scholarships or mentorships.

The group now has more than 80 children of subpostmasters across England, Scotland and Ireland.

Katie lived in Haw

Council condemns vandalism to HMO previously earmarked for asylum seekers

Millom Town Council said it was 'very disappointed' to learn a property has had windows smashed, unlawful access gained, and damage made to the structure inside including spray painting on walls, doors, plasterboard and tools stolen on Thursday morning.

This comes after a pause on licences to accommodate asylum seekers in HMOs in the town was officially made permanent as a result of the challenges set out by the Cumberland Authority, Whitehaven Police, the Northwest SMP, Trudy Harrison MP and M

Tourists 'from all over the world' will visit Lake District when Bluebird returns

After years of negotiation, Bluebird K7 will return to Coniston to be displayed in the Ruskin Museum having been restored by Bill Smith and his team of volunteers based in Newcastle.

Crowds are expected to see the boat on its journey and villagers in Coniston will be out in force on Saturday, March 9.

The Black Bull waiter Helen Edgeler is hoping the event 'will put Coniston back on the map' and be a boost for the local economy.

"There will be a lot of people coming from all over the world,"

'A real ambassador for Barrow' - Locals react to death of Hairy Biker Dave Myers

Hairy Biker Dave Myers has died at the age of 66, according to a statement from his co-star Si King on social media.

Myers, born in Barrow, first announced he was receiving treatment for cancer in May 2022, but did not specify what type he had been diagnosed with.

Conservative MP for Barrow and Furness, Simon Fell, has hailed Dave Myers as a 'real ambassador for Barrow.'

He said: "I vividly remember watching Dave and Si on Saturday Kitchen on groggy hungover weekend mornings. Their love of fo

Cumbria town to host first-ever Pride festival in the summer

The group behind Ulverston Pride Festival said it hopes to 'bring love, tolerance and Pride' to the town with live music, entertainment, games and dancing.

The event is set to take place on July 20 with a stage at the Market Cross to run from 10am until 5pm - hosted by Ulverston's Miss Patty Dale.

All the acts to perform on stage will be local as a way to support artists from across the south of the county including from Ulverston, Barrow and Kendal.

The event is being organised and developed

Plans for homes for asylum seekers 'paused' following vandalism

The Conservative MP for Copeland Trudy Harrison convened a meeting with representatives from Cumberland Council.

The council confirmed it was aware that Serco was seeking properties for conversion to houses of multiple occupations (HMOs) for housing asylum seekers as part of the Government's Asylum Dispersal process, according to Ms Harrison.

Dispersal accommodation is longer-term temporary accommodation managed by accommodation providers on behalf of the Home Office.

Ms Harrison explained th

Ulverston animator scoops award at international student film festival

Horace: Last Day of a Life, the animation produced by Alice Slater, won Best Animation at the 10th edition of the Dirigo International Film Festival - produced by students from University Centre Weston, aiming to showcase the creativity of student filmmakers worldwide.

The animation is a retelling based on the true story of the dramatic final hours of Horace the Elk. His complete skeleton was found by accident in July 1970 and depicts the earliest evidence of humans in the North West of England

Police investigate after obscene graffiti is scrawled on property in town

Residents have spoken to this publication and used social media to highlight soaring vandalism on properties in town.

Later last month, a house in Millom was graffitied with the words 'not welcome scum' and 'scum out'. The same happened to a local business.

Both incidents were reported to Cumbria Police on January 29 and 30.

A spokesperson for Cumbria Police explained that the Whitehaven Neighbourhood Policing Team are investigating a number of incidents of criminal damage.

They said: "The i

Boy, 8, climbing Mount Everest after record-breaking summit of Mount Olympus

In April 2024 eight-year-old Frankie McMillan, from near Wasdale, will climb to Everest Base Camp in his latest mountaineering fundraiser for Make-A-Wish.

However, this will not be Frankie's first summit, as last September, at the age of seven, he became the youngest Briton ever to reach the top of Mount Olympus, involving a three-day climb to 9,573 feet (2,918 metres) – and he raised more than £3,000 for Wasdale Mountain Rescue Team.

Just two months after his birthday, Frankie will hike into

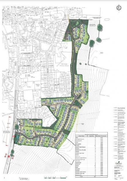
Decision to build 100 homes in south Cumbria town deferred

Members of the strategic planning committee for Westmorland and Furness Council deferred plans from Oakmere Homes to construct 125 homes on land off Beetham Road in Milnthorpe.

A spokesperson for Westmorland and Furness explained the reason for the deferral was to allow for more consideration on foul sewerage, affordable housing provision, the proximity of the proposed development to existing properties, the proposed mix of dwellings and the access arrangements.

The proposed development compri

Residents 'in shock' after bomb squad orders street to evacuate

A major incident was declared on December 6 after a multi-agency response to a suspicious item in a house led to 53 homes being evacuated on Steel Street.

The Explosive Ordnance Disposal (EOD) team carefully assessed the item until they declared that it was safe.

A 46-year-old man remains in police custody after he was arrested in connection with this incident.


Enquiries are ongoing and a police presence will remain in place at the house in question on Steel Street.

Residents were given s

People stranded overnight after 'unexpected' heavy snow hit south Cumbria

Cumbria Police declared a major incident on Saturday, December 2, to minimise heavy snowfall challenges on the county’s road network.

Police urged people not to travel unless necessary, particularly to the South Lakes and Millom areas, due to the challenging road conditions.

The multi-agency response was launched after the Met Office issued an amber warning for snow covering large sections of south and west Cumbria, which was in place until midnight.

An additional yellow weather warning was a

Tributes paid to former landlady with a 'heart of gold' who died in Spain

Jeanie Hill, from Dalton, who had moved to Benalmádena, died on November 21 after an accident.

Tributes have been pouring in for Jeanie, who leaves behind her partner Paul, son John and four grandchildren Jaiden, Bailey, Katie and Jacob.

Dalton councillor Dave Taylor, who was close friends with her, said she was one of the town's landlady 'legends.'

He said: "After acquiring The Masons from my father-in-law John Salisbury, Jeanie took it on her shoulders to hire my wife Tracy.

"Tracy soon ma

Barrow restaurant takes legal action against business with same name

Dodona House Mediterranean Grill in Duke Street, Barrow, is accusing a restaurant in Sheffield of using their name without consent.

The restaurant owners are urging them to remove their brand name from their premises and stop doing business activities under their name.

They have reported the trademark infringement to the Intellectual Property Office and filed a notice of threatened opposition against the business.

"If they still continue not to respect laws and rules of the trademark, then we

Dad 'outraged' as teenage yobs hurl firework at his eight-year-old son

Samuel Alty's son and his friend went to Walney Park to play football. But a short while later, he received a phone call from his son saying that a group of teenagers had been 'bullying and threatening them’.

Mr Alty and the other child's dad went to the park to take their children home when the group – believed to be between the ages of 11 and 17 - started 'hurling abuse.'

"Then they started lighting fireworks and chucked one of them, and it landed and exploded five feet away from my kid and

'I'm fading away' - Mum who weighs five stone faces one year wait for treatment

39-year-old Natalie Fowler, who lives in south Cumbria, was diagnosed with gastroparesis at the age of 24.

The long-term condition stops her from eating food properly so her body has to be fed by tubes.

However her health has 'deteriorated' since she moved to the county in 2021. She has been struggling to get hospital appointments to see specialists to receive proper treatment for her illness.

Before moving to south Cumbria, Natalie said she weighed nine and a half stone.

She now weighs just

Seven-year-old boy hikes all the 214 Wainwright peaks

Seven-year-old Frankie McMillan embarked on the challenge with his mother Basia McMillan when he was only three years old.

On Saturday August 19 the young boy finished climbing all the 214 fells and mountains in Wainwright's Pictorial Guides.

It took the boy four years to complete the English Peaks but only two years and a half of active climbing as they did have to stop the challenge due to the pandemic.

His mother said she had been an 'emotional wreck' over the last few days.

She said: "It

Seven-year-old to set new record climbing Mount Olympus for mountain rescuers

At the beginning of September Frankie and his mother Basia McMillan will be climbing the Greek mountain to fundraise for WMRT.

Apart from climbing Greece's highest mountain, Frankie will also be breaking a record, as according to the Hellenic Mountain Guides Association, he will be the youngest Briton ever to climb to the famous 2,918m summit.

Ms McMillan said: "Usually, children his age aren’t allowed to climb Olympus, not to mention the highest of its summits, Mytikas, given its three days o

New coffee van promises 'high quality' coffee with espresso for £1.65

Coffee D'ash, a portable shop on wheels, is opening at Barrow Outdoor Market in Portland Walk on Saturday.

The business, founded by Ash Holroyd, will be selling cold drinks as well as cappuccinos and espresso.

The concept is based on selling good quality coffee at good prices as opposed to 'inflated market prices,' said Ash.

He said: "My brother-in-law is Italian and he says that in the UK coffee is expensive because in Italy you can still get an expresso for a euro.

"He baffles that the cof

We joined passengers on a bus route facing the axe - this is how important it is

Travellers Choice has announced the withdrawal of the 530/532 bus services starting from July 20, saying it is no longer commercially viable.

The bus, which goes around the peninsula, stopping at Lindale, Grange, Allithwaite, Flookburgh, Cartmel and Cark, before taking passengers into Kendal, will cease to exist.

Susan Simpson, from Grange, said the bus cancellation will be a 'great loss for pedestrians.'

Mrs Simpson, 76, said: "I'm a pedestrian and the bus stop is around the corner from me a
Load More